Home
About us
Company profile
Products
Top Hammer Drilling Tools
Small Hole Drilling
Drifting And Tunneling
Bench And Production Drilling
Shank Adapters
Down The Hole Drilling Tools
High Air Pressure DTH Hammer
High Air Pressure DTH Bit
Reverse Circulation DTH Hammer
Reverse Circulation DTH Bit
Low Air Pressure DTH Hammer
Low Air Pressure DTH bit
Drill Rig
Down The Hole Drill Rig
Integrated Down The Hole Drill Rig
Vertical Shaft Drilling Rig
Hydraulic Drilling Jumbo
Hydraulic DTH Drilling Rig
Hydraulic Bolting Jumbo
Hydraulic Scaling Jumbo
Underground Trackless Equipment
Underground Diesel Carry-Scraper
Underground Mining Truck
Multifunctional Engineering Service Vehicle
Battery and Electric Carry-Scraper
News
Company news
Industry news
Talent resources
Recruitment
Contact us
Home
About us
Company profile
Products
Top Hammer Drilling Tools
Down The Hole Drilling Tools
Drill Rig
Underground Trackless Equipment
News
Company news
Industry news
Talent resources
Recruitment
Contact us
Top Hammer Drilling Tools
Down The Hole Drilling Tools
Drill Rig
Underground Trackless Equipment
Underground Diesel Carry-Scraper
Underground Mining Truck
Multifunctional Engineering Service Vehicle
Battery and Electric Carry-Scraper
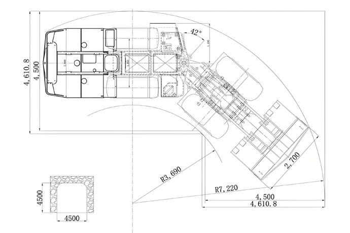
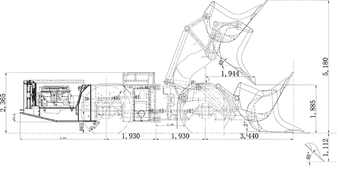
WJ-6 Diesel Carry-Scraper
CopyRight © 2013 All Rights Reserved.
Baptech CopyRight 备案号:
津ICP备2022002728号
津公网安备12011602300364
Home
About us
Products
News
Talent resources
Contact us
(86)22 58107703