
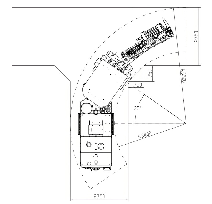
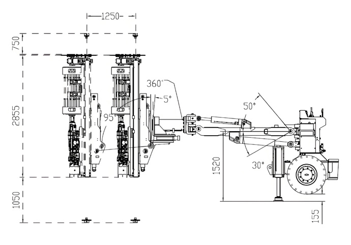
CYTC70 Hydraulic drilling jumbo is a high performance jumbo designed for deep hole drilling, particularly for radial or fan drilling, offering extreme flexibility in narrow, small secfion tunnels. The boom has a wide swing range and parallel moving function, and the feed can achieve 180° all-round rotation in horizontal and vertical directions, that ensures the jumbo can cover a large area after positioned, and meet the drilling requirements of a variety angle holes.
The drilling jumbo is also good at humanized design, with an operation console under the FOPS roof that providing the operator all-round safety protection, greatly increasing the safety in operation process, so that operator can efficiently work and ensure safety.





